| BROCHURE: DE | NL | EN | FR | IT
TREPEDIA
TREPEDIA
FREE
DEMO
Licensed & Insured Approved

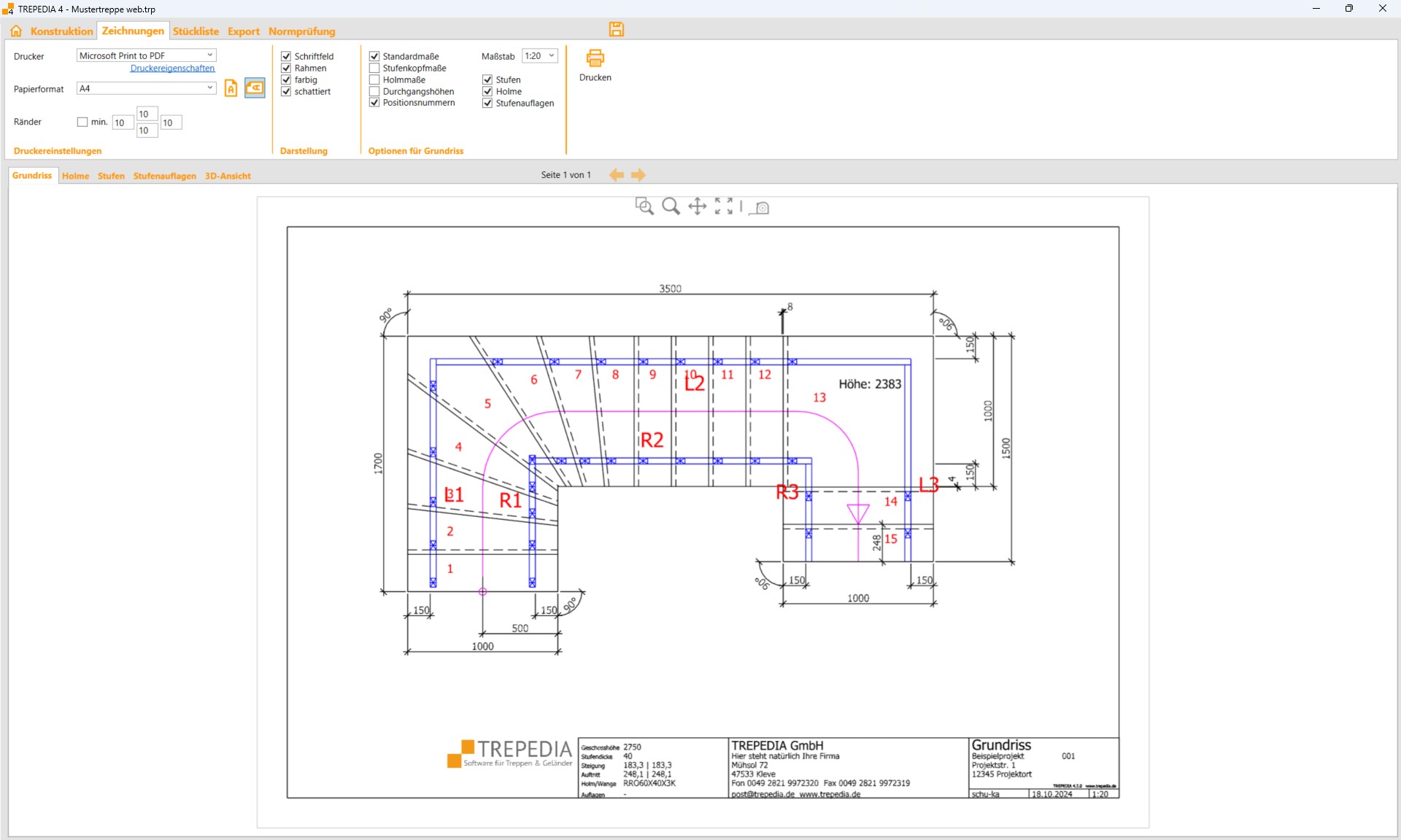
Floor Plan

Flexible Visualization Options for Every Requirement

The floor plan provides different visualization options - from simple overviews to detailed dimensioned drawings.

See how fast it works

Versatile Visualization

The floor plan allows for many options. For example, it can be output without beams but with step head dimensions. Or without steps and only with dimensioned beams, as many metalworkers prefer.

TREPEDIA Floor Plan Example

Example of a detailed floor plan with all dimensions

Standard Floor Plan

  • • Steps and beams
  • • Complete dimensions
  • • Railing view
  • • Wall distances

Without Beams

  • • Only steps visible
  • • Step head dimensions
  • • Clear overview
  • • Ideal for planners

Beams Only

  • • Without steps
  • • Dimensioned beams
  • • For metalworkers
  • • Construction focus

Application Areas

For Architects & Planners

  • Clear space planning without construction details
  • Step head dimensions for precise space requirement calculation
  • Integration into construction drawings

For Metalworkers

  • Focus on beam construction and dimensions
  • Production-ready visualization
  • Direct use for manufacturing